Ingenieurbau u.
Auftragsarbeiten
© KAMLAGE & LOHMANN GBR
2022
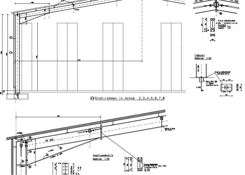
Stahlbau
Holzbau
Massivbau
Fortluftschornstein
Behälter u. Silos
Massenberechnung
Kalkulation
Aufmaßarbeiten
Bewehrungspläne
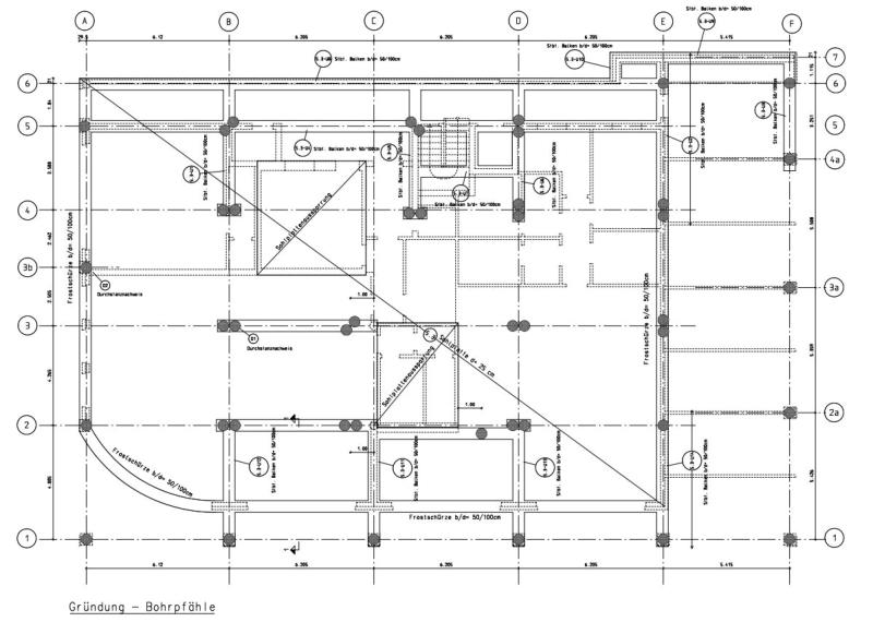
Bohrpfahlpläne
Entwurfspläne
Kantholzbinder
Startseite
Holzrahmenbau
Energieberatung
Sanierung
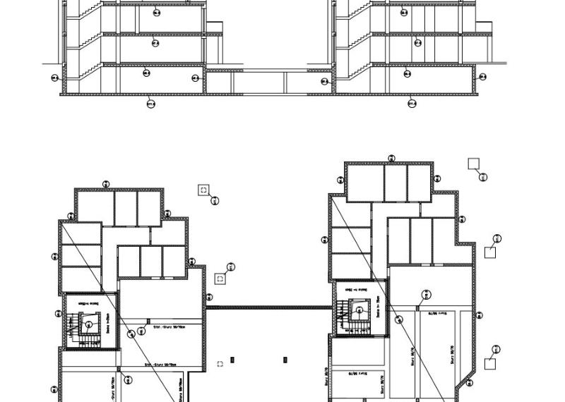
Wohn.-u.Geschäftshäuser
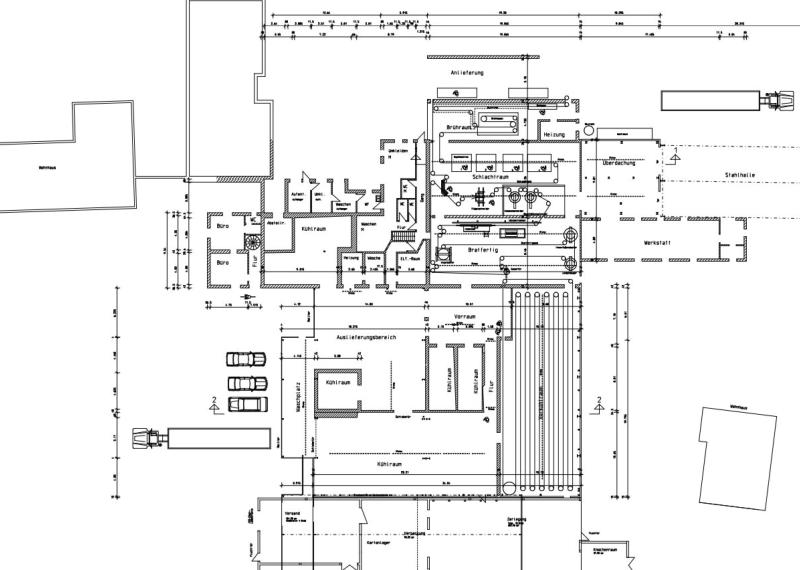
Gewerbe und öfftl .Bauten
Ingenierbau u. Auftragsarbeiten
Massivbau
Holzbau
Stahlbau
1991-2022
2011-2012
2019-2020
2021-2022
Fortbildung
Aktuell
Schweinestall
Putenstall
Bullenstall
Wärmeschutz
Enev2099-Nachweis
Passivhaus
Brandschutz
Brandschutzkoncept
Branschutzpläne
Schallschutz
Außenbauteile
Innenbauteile